© 2025 Granite State ADU. These plans are copyrighted
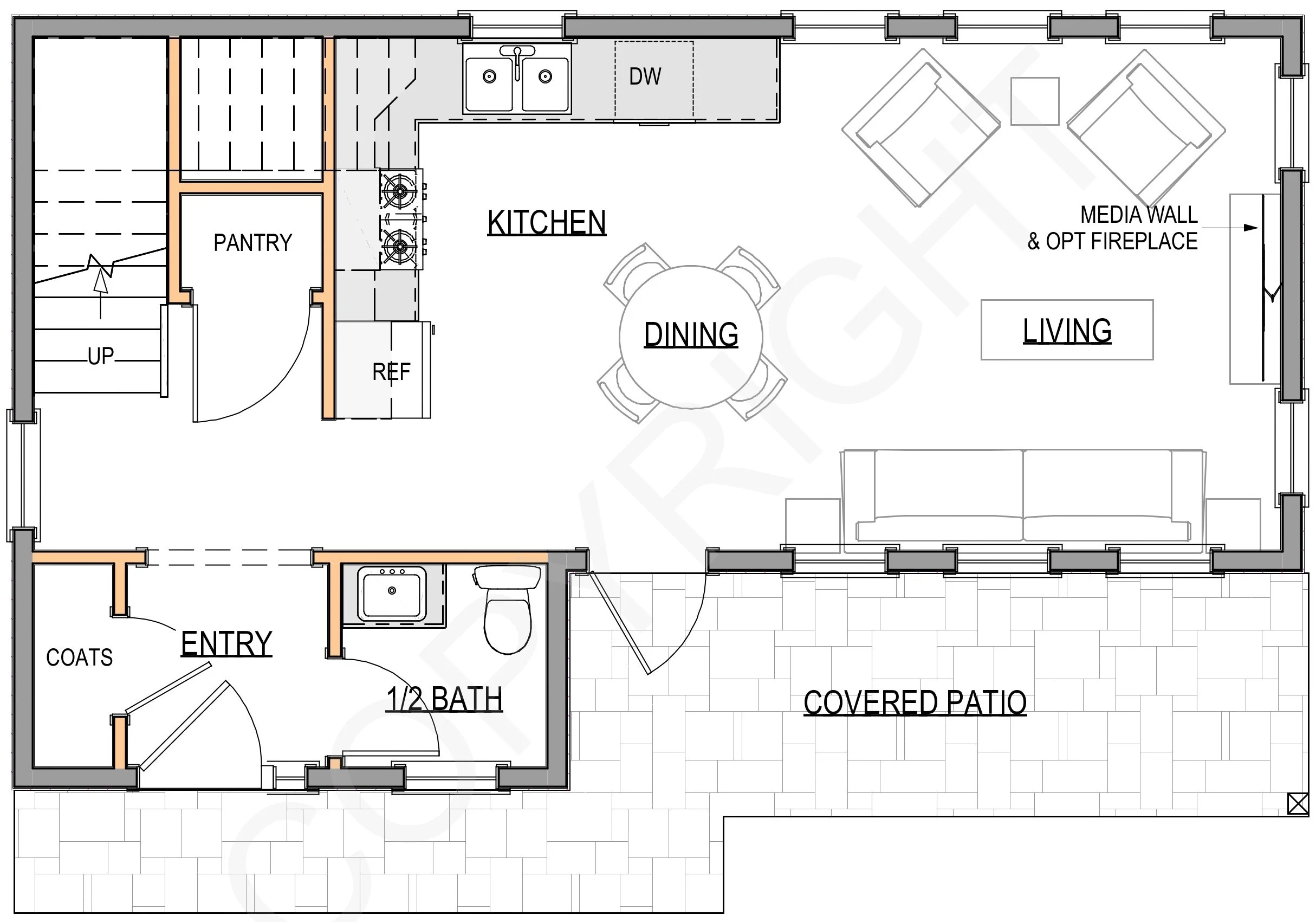
950 sq ft
Two-Story”
2 Bedrooms, both will fit King-size beds
1and a half Bathrooms
Full-size kitchen w/ standard appliances
Dedicated Dining area
Pantry closet
Laundry closet
Covered Patio (can be omitted to further reduce cost)
Remember - this is just a starting point. We will fine tune the design to fit your taste, your site and your budget!
Big Alton Bay
First Floor Plan (500 sq ft)
Second Floor Plan (450 sq ft)

