© 2025 Granite State ADU. These plans are copyrighted
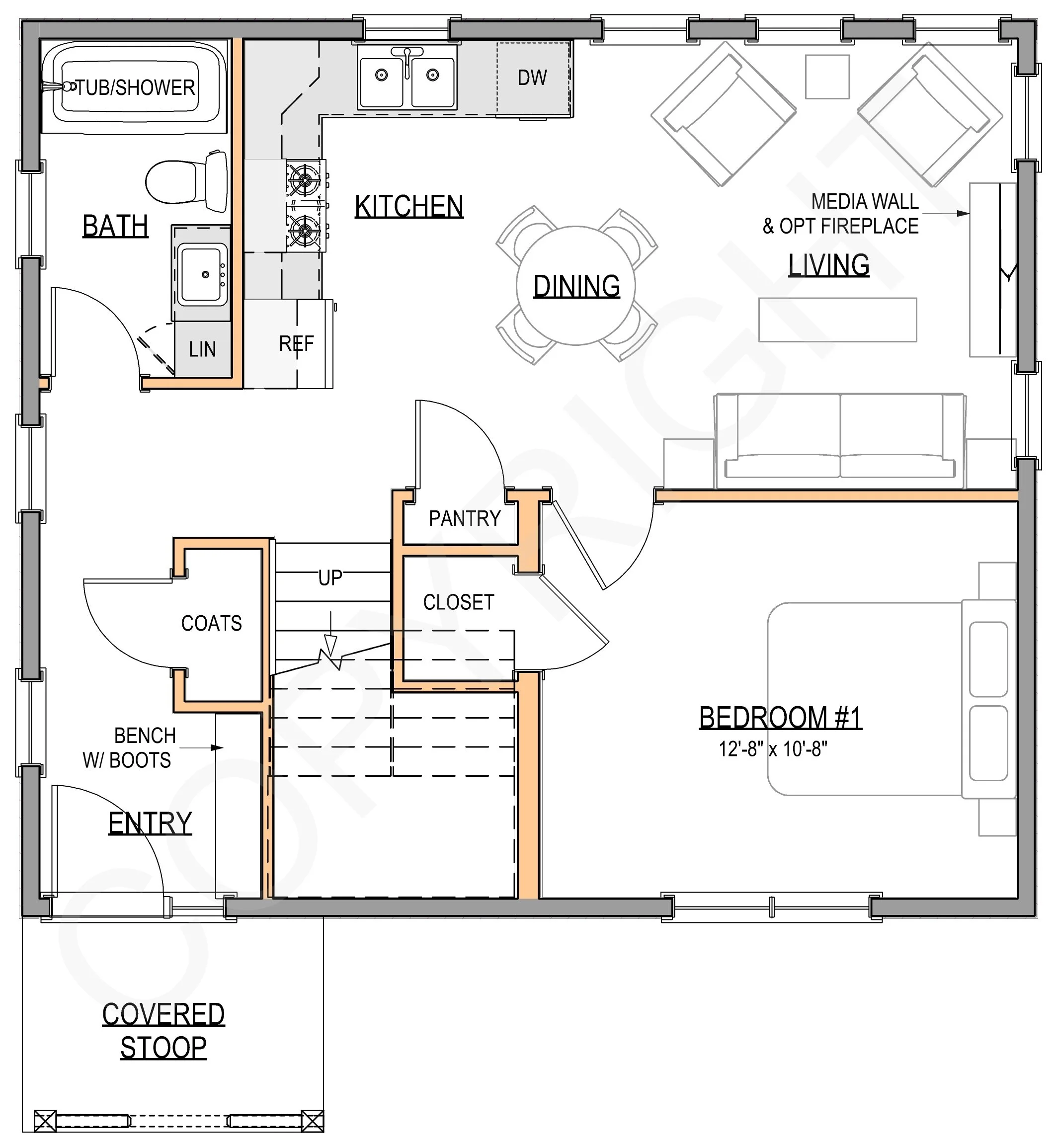
950 sq ft
Two-Story”
2 Bedrooms, both will fit King-size beds
2 Full Bathrooms
Full-size kitchen w/ standard appliances
Dedicated Dining area
Laundry closet
Eave Storage
Covered Stoop (can be omitted to further reduce cost)
Remember - this is just a starting point. We will fine tune the design to fit your taste, your site and your budget!
Manchester
First Floor Plan
Second Floor Plan

